Beranda
Portfolio
Tentang Kami
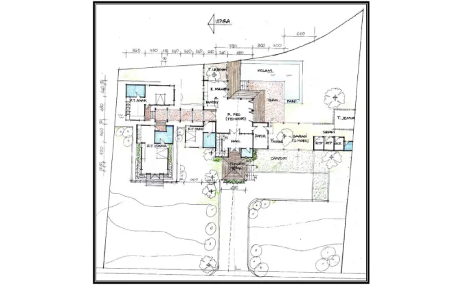
kompleks rancamaya viesta, bogor
Kav. E2-E3, Ciawi